Характеристики
|
Загальні характеристики
|
|
| Термін гарантії | 12 місяців |
|
Виробник |
FRANKE |
| Тип товару | Вбудована витяжка |
| Стан | Новий |
Опис
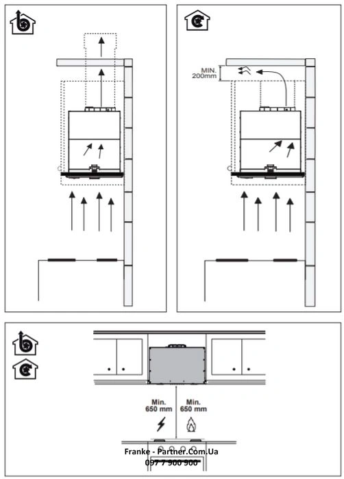
Витяжка Franke вбудовувана Box Flush EVO, 70см, 1120м3ч, FBFEXSA70, нерж 305.0665.361. Витяжка для вбудовування в шафку з електронним управлінням та периметральним втягуванням повітря. Можливий непомітний монтаж врівень з дном шафки. Витончений дизайн та чудові технічні характеристики витяжок Franke роблять кухню ще більш стильною, вишуканою та функціональною. Ідеально підібрана витяжка гарантує чисте повітря в кухні та захист від неприємних випарів. Крім того витяжка може служити джерелом світла та слідкувати за якістю повітря автоматично очищуючи його від забруднень.

Будьте першим!